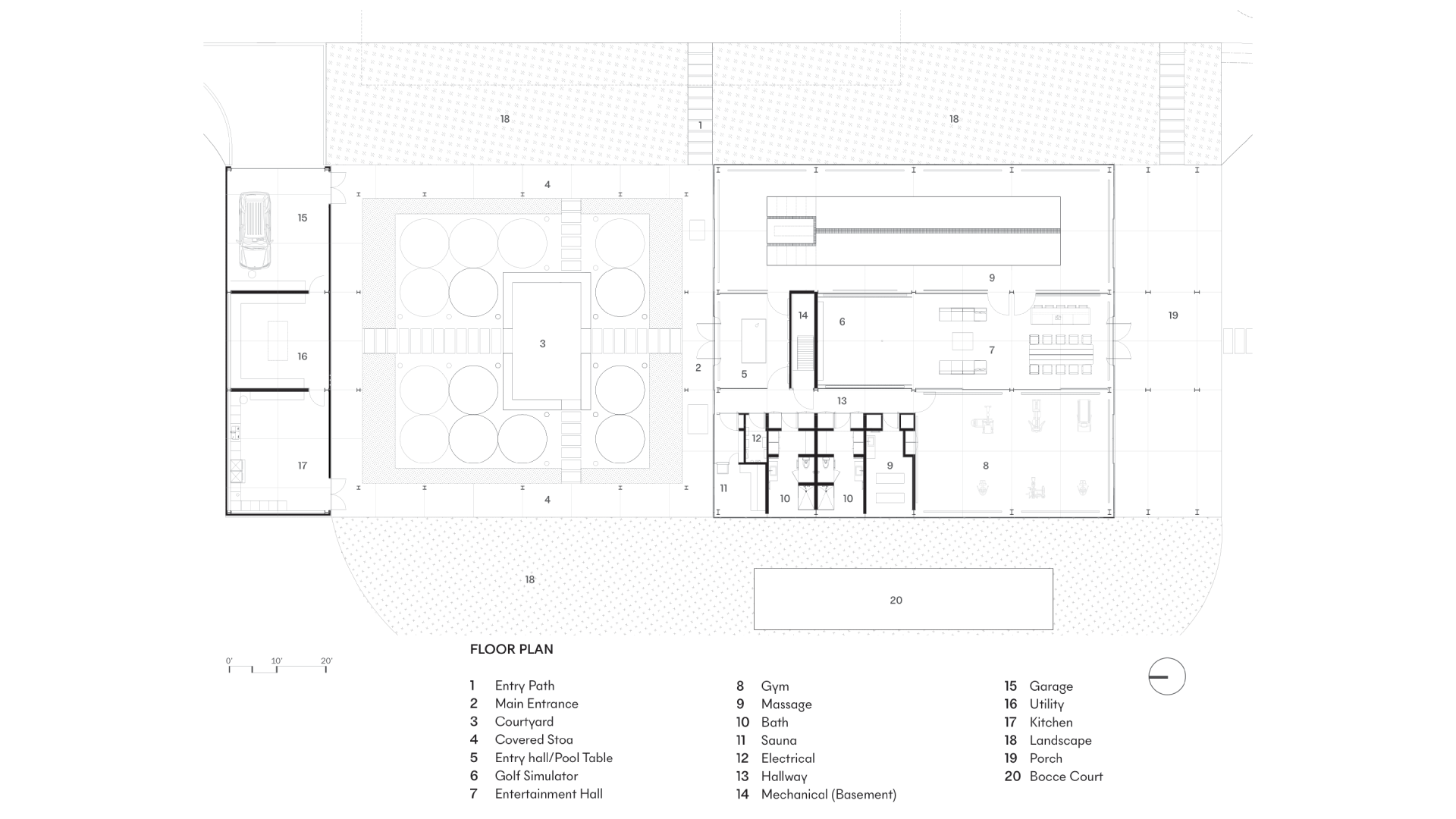
Sited on a small plateau in the Hudson Valley, the steel and glass Recreation Pavilion is a modern take of a traditional barn with breathtaking views of the surrounding forest, a panoramic lake, and the vibrant sky beyond. Visitors approach via a tree-lined courtyard defined by a steel column stoa, the primary structure on one side and a secondary support structure on the opposite end. The Pavilion becomes the backdrop for a prominently placed sculpture, creating a space for repose and meditation.
The central area, with the main entrance, is the heart of the Pavilion, while the outer zones accommodate athletic and support functions. To the west, the Pavilion houses a pool with views of the surrounding forest. To the east, it contains a gym, sauna, massage room, and changing facilities. Both wings are connected to the central space through large glass doors. The central zone serves as a multi-purpose gathering space for family events, completed with lounge and dining areas, as well as a golf simulator positioned at its core. At the far end, the central space opens onto a large outdoor patio. This structure extends from the sloped roof line, creating a seamless transition between interior and landscape, and offering a direct view of the property’s lake.
The Pavilion utilizes geothermal energy to provide heating, cooling, and electrical generation for the entire building allowing the building to be off the grid and independent of the local utility company.
